
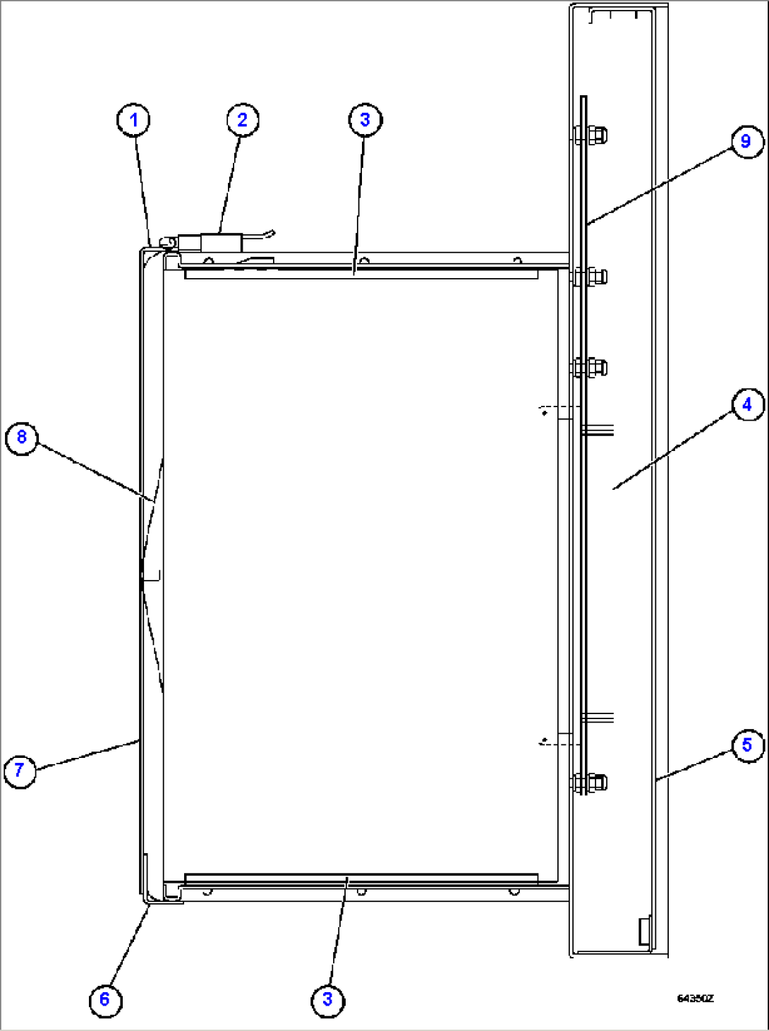
| Item | Part No. | Part Name | Qty | Serial No. |
| 1 | VE8183 | STRIKE | ||
| 2 | VE8181 | CATCH | ||
| 3 | VE8180 | GUIDE, CARD | ||
| 4 | GE1205 | CONNECTOR - 210 CIRCUITS | ||
| 5 | GE1204 | COVER | ||
| 6 | GE1501 | HINGE | ||
| 7 | VE8775 | DECAL, CAUTION | ||
| 8 | VE8188 | SPRING | ||
| 9 | GE1483 | BACKPLANE | ||
| 9 | (SEE PRECEDING PAGE FOR BALANCE OF PARTS.) |
