
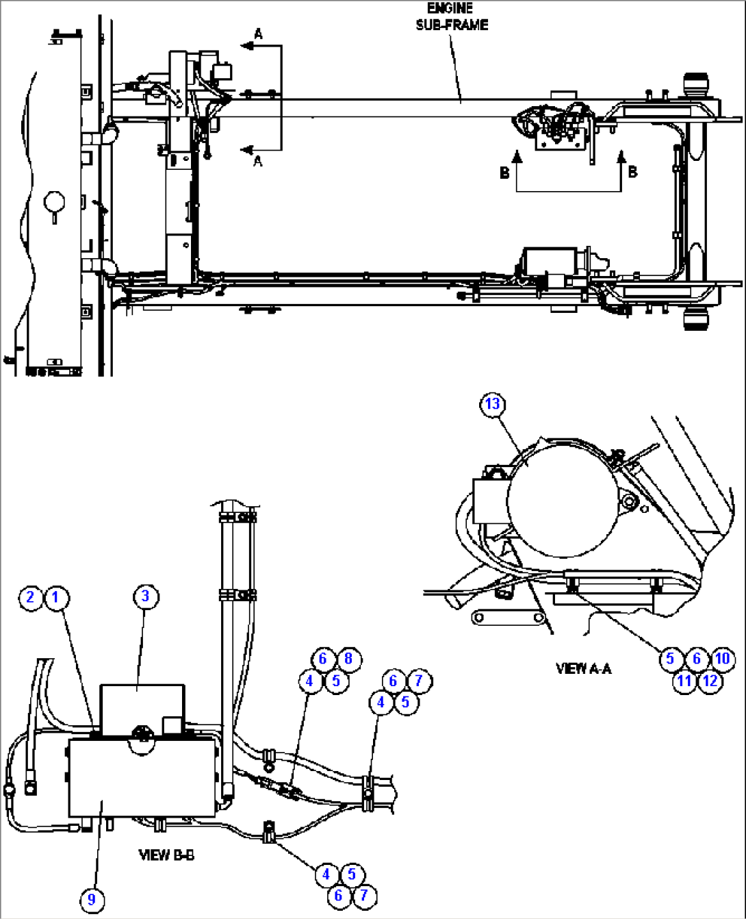
| Item | Part No. | Part Name | Qty | Serial No. |
| 1 | TD1548 | CAPSCREW - 1/4" - 20NC X 5/8" | ||
| 2 | C1546 | FLAT WASHER - 1/4" | ||
| 3 | EJ5624 | COVER | ||
| 4 | MM0461 | FLAT WASHER - M10 | ||
| 5 | MM0471 | LOCKWASHER - M10 | ||
| 6 | MM0178 | NUT - M10 X 1.50 | ||
| 7 | WB1304 | CLAMP, CUSHION - 9/16" | ||
| 8 | 08193-21012 | CLIP, CONNECTOR | ||
| 9 | EJ5625 | COVER | ||
| 10 | MM0713 | FLAT WASHER - M10 | ||
| 11 | WB3092 | CLAMP, CUSHION - 7/8" | ||
| 12 | MM0648 | STUD, WELD - M10 X 1.50 X 25 | ||
| 13 | ALTERNATOR, BATTERY CHARGING (140A SUPPLIED W/ENGINE) | |||
| NS|14 | NOTE: NS = NOT SHOWN | |||
| NS|15 | XA0117 | BELT, ALTERNATOR DRIVE |
